企业中心 425㎡

72,675元/月   单价 5.7元/㎡/天

  • 425
    建筑面积
  • 46-62
    可容纳工位
  • 近期 32 位用户关注
  • 天目路128号
  • 地铁3号线; 地铁4号线宝山路站343米 地铁8号线中兴路站730米 地铁12号线; 地铁8号线曲阜路站760米 地铁10号线; 地铁12号线天潼路站885米 地铁10号线四川北路站973米
  • 企业中心写字楼出租
    冯俊杰 Edward
    微信一键扫码拨号 18964923303

企业中心  办公室租赁详情

  • 租赁期限 2-3年
  • 免租期 可商议
  • 付款方式 付一押三
  • 交房时间 现房
  • 交房标准 标准交付
  • 看房时间 联系顾问,随时看房
  • 租赁详情

    房源优点:该套户型方正,采光好;可注册;目前特价优惠,即租就送免租期。
    企业中心写字楼租赁流程:
    提交需求(告知您的办公室选址需求,1分钟内响应,推荐您合适房源)
    实地带看(筛选出合适的房源,专人专车接送看房,节约您宝贵时间)
    商业谈判(确定意向房源后,为您谈判商业租赁条款,保证您合理权益)
    签约入驻(协助签约、付款、交房,入驻及办公室扩租续租等长期免费服务)

企业中心概况

  • 竣工年份 2015 年
  • 总楼层 21 层
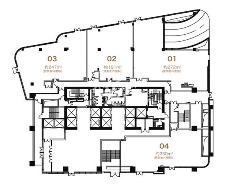
  • 标准层面积 1960 平方米
  • 得房率 68 %
  • 空调 中央空调(工作时间)
  • 净高 2.9 米
  • 物业管理费 25元/㎡/月
  • 交房标准 架空地板,墙面涂料,矿棉板配格栅灯

企业中心简介

上海静安区写字楼出租/办公楼租赁

企业中心写字楼位于天目西路128号,近梅园路;傲居上海内环核心,周边五大商圈环绕;地段优越交通便利,隶属静安北拓板块,与南京西路仅一桥之隔;地铁5线汇集,毗邻上海火车站,紧邻南北高架,快读到达城市各大CBD,出行十分便捷。

企业中心是嘉里集团的又一力作,大厦建筑设计独特,装修现代、内部设施齐全,地面及墙身铺设高级大理石,大厦拥有5A自能系统,超高的层高、尊贵挑空打通,尽显非凡气派;紧邻大型绿地,坐享花园办公;并且其物业管理周到,为商家提供了一流的服务。

以上93office(www.93office.com)办公楼租赁信息是否帮助到您,若想了解更多,请关注静安区写字楼出租专区。

写字楼租金行情

  • 企业中心
    写字楼租金均价

    5.3元/㎡/天

  • 火车站/汉中路商圈
    写字楼租金均价

    5.4元/㎡/天

  • 静安区
    写字楼租金均价

    5.8元/㎡/天

企业中心 425㎡ 

business center

4.4 - 6.0元/㎡/天
咨询顾问
微信一键扫码拨号 18964923303
冯俊杰 Edward
预约看房

企业中心周边配套

  • 公交
  • 地铁
  • 餐饮
  • 银行

搜索到条记录

  • 上海写字楼
  • 区域写字楼
  • 商圈写字楼
  • 热门写字楼
  • 热门创意园
  • 热门联合办公
+ 查看更多
+ 查看更多